Aluminum Casement Windows

Casement window: a window sash opening on hinges that are generally attached to the (upright) side of its frame.

SCROLL

Dalco® Casement windows are hung on Truth adjustable stays on either the left or right side of the opening. The Dalco® Casement is engineered with heavy-duty hardware to allow for a full 90 degree opening, permitting even the slightest breeze to be directed into the house. The multi-point locking system is standard to ensure that when closed the sash is airtight to the elements achieving zero air infiltration which is excellent for dust, noise and energy efficiency. The hardware is activated from a single point for functional locking. The frame and sash is designed with heavy sections to ensure that even in the strongest winds the sash will not rattle or slam. The sleek design is aesthetically pleasing allowing for improved peripheral vision from inside to outside the window. The window is able to be open a full 90 degrees, to allow for easy cleaning and fire exit.

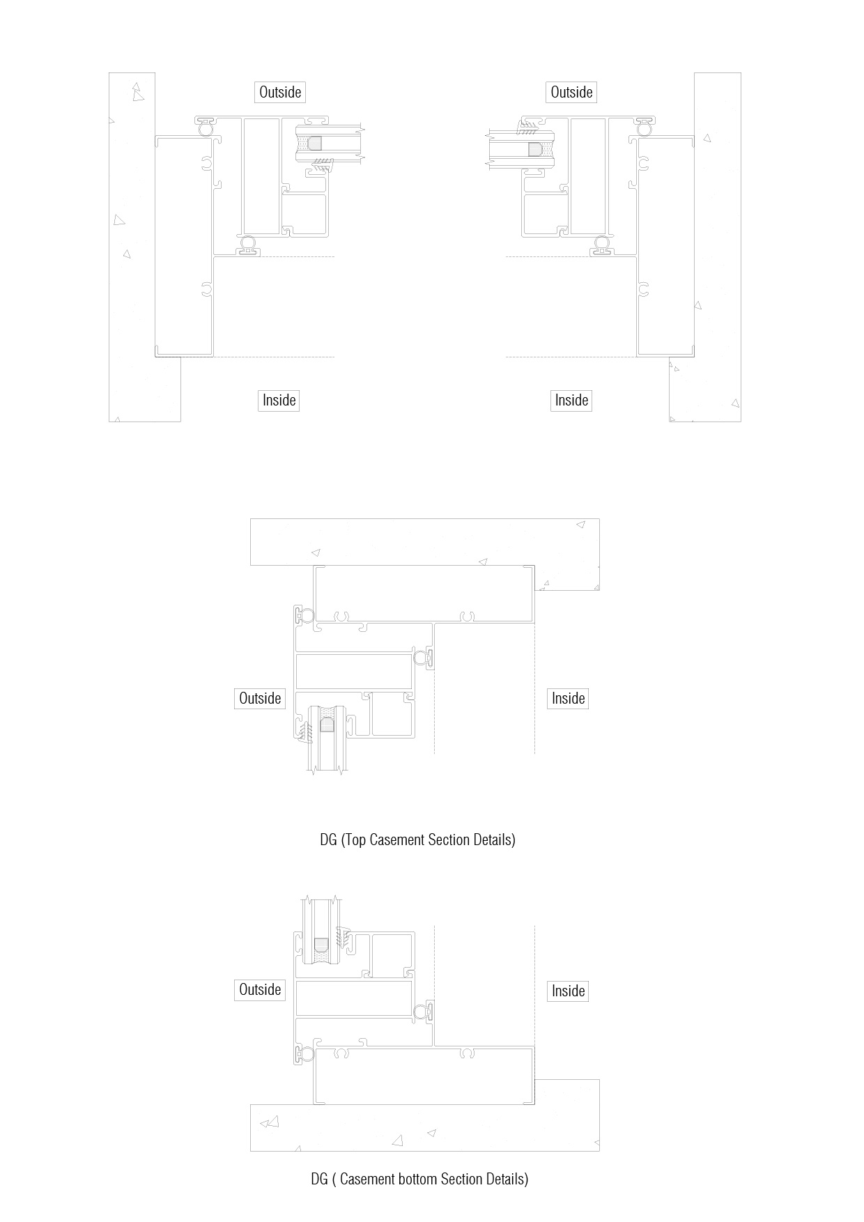
Domalco 4” Casement Windows

Economy Series, Profile Width 95mm, Fitted with Chinese Accessories, Profile Thickness 1.2-1.5mm, Single & Double Glazing Option, Range of glass/panel thickness 5-20mm. Max Size 4.6 x 3 Ft per panel.

Casement window Features

• Profile based on European designs which enhances the interior as well as exterior looks

• Available in Single & Double Glazed unit

• Dual Bulb seals for outstanding sealability

• Sleek sash design

• Insect screens are available

• Heavy-duty hardware

• Opens 90 degrees for easy cleaning and fire exit

• Adjustable imported hardware stays allow for fine onsite adjustment

• Available in certified Anodized Color, Powder Coating & Wood Grain Finish.

Doors • Domalco 3" Sliding & 4" Sliding • Elios 50 Series Sliding & Swing • Elios 85 Series Sliding & Swing • Euromaxx Sliding & Swing • Lift & Slide Sliding • Bi-Fold Windows • Domalco 3” Sliding, 3” Fixed, 4” Sliding, 4” Fixed & 4” Casement • Elios 50 Series Sliding, Fixed & Casement • Elios 85 Series Sliding, Fixed, Casement & Tilt & Turn • Euromaxx Sliding, Fixed & Casement • Glass Louver, Z Louver & Box Louver • Protector Bead Facade • Curtain Wall System • Spider Glazing System • Facade Cladding System Glass • Double Glaze Glass Salient Features • Sound Proofing • Monsoon Proof • Dust Proofing • Airtight Design • Keep insects out • Resistant to Strong Winds
Your partner for premium window systems
Hotline: +8801769402981 Website Design by - TechTonicFX
Resources | Disclaimer | Privacy Policy | Sitemap Copyright © 2013 DALCO® window and door systems. All rights reserved